
中古戸建 片倉2丁目
ブルーライン「片倉町」駅徒歩9分
敷地を生かした採光の良い家
床暖房付リビング・トップライト
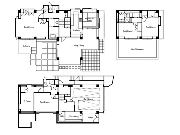
5SLDK+地下車庫2台
★ユーコープ片倉店買物便利!
★岸根公園!
★ファミリーマート・まいばす直ぐ!
★片倉うさぎ山公園!
★トピックゴルフクラブ!
☆首都高速・第三京浜道路アクセス最高
写真・間取り図
物件情報
| 価格 | 17,000万円 |
|---|---|
| 所在地 | 横浜市神奈川区片倉2丁目33番8号 |
| 交通 | ブルーライン「片倉町」駅徒歩9分 |
| 権利 | 所有権 |
|---|---|
| 地目 | 宅地 |
| 地積 | 293.25㎡(公簿)88.70坪 |
| 建物 | 1階105.28㎡、2階110.98㎡、3階35.82㎡ 合計252.08㎡(76.25坪) |
| 構造 | 鉄筋コンクリート造スレート葺3階建 |
| 築年月 | 1986年4月 |
| 用途地域 | 第1種低層住居専用地域 |
| 建ぺい率 | 40% |
| 容積率 | 80% |
| その他規制 | 第1種高度地区など |
|---|---|
| 道路 | 公道約4.4m |
| 設備 | 公共水道・下水道、都市ガス |
| 引渡し | 即 |
| 現況 | 空家 |
※売主の契約不適合責任は免責とする
※先着順につき、ご成約の際はご了承ください。
※現況優先となりますので詳細は担当にお尋ねください。
※本図面は概要を記載しており、現況を優先いたします。
※当社既定の仲介手数料を申し受けます。
交通・アクセス
ブルーライン「片倉町」駅徒歩9分





